# # # # #     THIS IS A DEMONSTRATION WEBSITE     # # # # #

~

Our Customizable MLS RETS Website With Updated Daily Listings

Please test out this Demo Website and all of its abilities to get an idea of how your website will work.

~

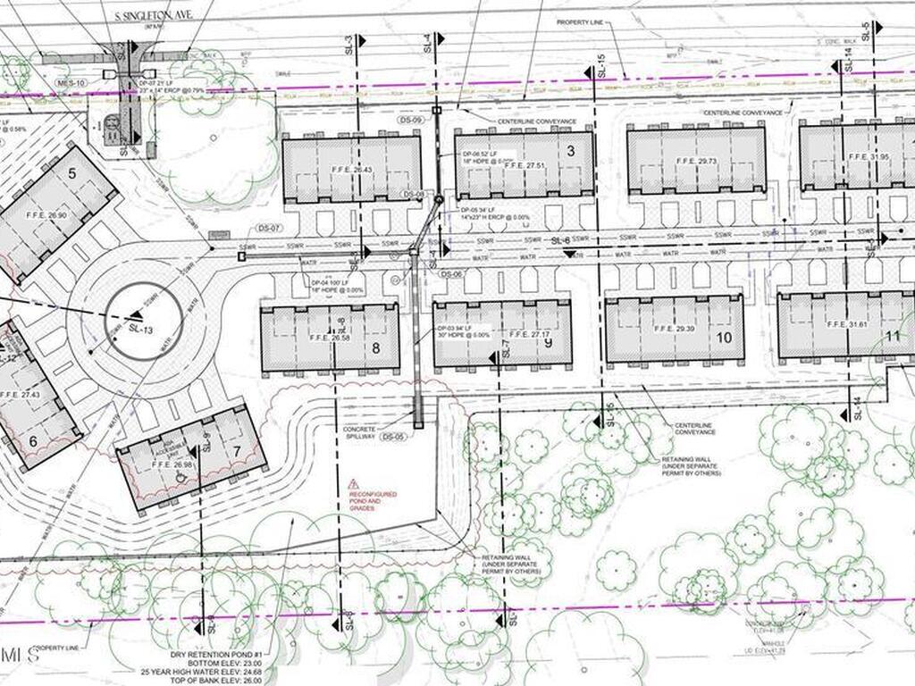
S Singleton Avenue, Titusville, FL 32796

4.66

ACREAGE

$1,800,000

LISTING PRICE

Unimproved Land

TYPE

Road Surface: N/A

MLS#: 1059542


Status: Active

For More Information Call:

321-255-4242

Property Details

Approved for 44 multifamily condo units! Demand for housing continues to expand in the Titusville and surrounding areas. Units are 3 bedroom, 2.5 bath, 1 car garage appealing to both end-users and investors. Units are arranged in 11 buildings of 4 units each in a townhouse-style format, and were designed to be able to build to scale the site as desired. Ideally situated in Titusville, FL, near the Indian River, Kennedy Space Center, and SpaceX launch facilities. Titusville is experiencing increased demand due to the resurgence of the space industry and continued population growth. Excellent resale or rental prospects with demand from aerospace professionals and retires.


Broker Reciprocity Logo

This listing is courtesy of Fathom Realty FL, LLC. Property Listing Data contained within this site is the property of Brevard MLS and is provided for consumers looking to purchase real estate. Any other use is prohibited. We are not responsible for errors and omissions on this web site. All information contained herein should be deemed reliable but not guaranteed, all representations are approximate, and individual verification is recommended.

  • Acreage4.66
  • Area103 - Titusville Garden - SR50
  • CityTitusville
  • CountyBrevard
  • DirectionsFrom I-95 Exit 220, east on 406, south on Singleton Ave. Property is at corner of Singleton and Tropic.
  • General County LocationNorth
  • List Price/Acres$386,266.09 / acre
  • Listing ID1059542
  • Listing StatusActive
  • Property TypeVacantland
  • State/ProvinceFL
  • StatusActive
  • Status Change DateTuesday, October 14th, 2025
  • Street DirectionS
  • Street NameSingleton
  • Street SuffixAvenue
  • Sub TypeUnimproved Land
  • SubdivisionNone
  • Tax Year2023
  • Taxes$1,178.06
  • UnBranded Virtual TourClick Here
  • Zip Code32796

Share

Subscribe