# # # # #     THIS IS A DEMONSTRATION WEBSITE     # # # # #

~

Our Customizable MLS RETS Website With Updated Daily Listings

Please test out this Demo Website and all of its abilities to get an idea of how your website will work.

~

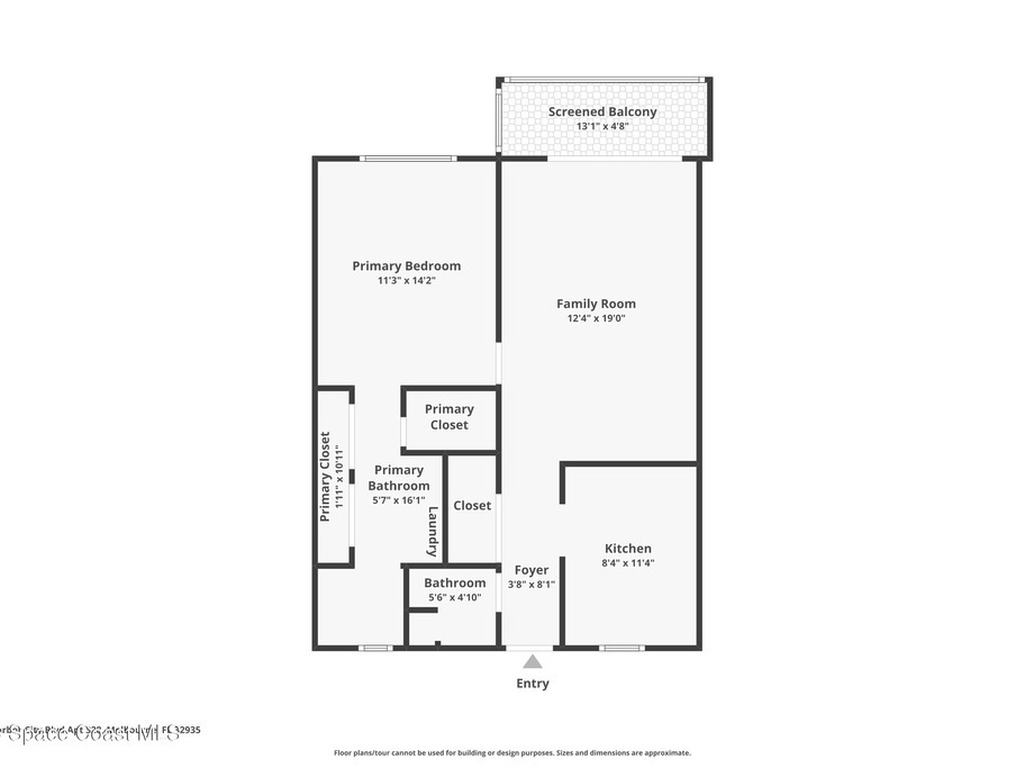
3150 N Harbor City Boulevard, Melbourne, FL 32935

1

BEDROOMS

2

BATHROOMS

$124,900

PRICE

828

SQUARE FEET

Split Bedroom: N/A

Subdivision: Shady Dell Riverview S Condo No 1

MLS#: 1067269


Status: Active

For More Information Call:

321-255-4242

Property Details:

Enjoy easy Florida living in Shady Dell Riverside South, a well-maintained 55+ riverfront community. This bright 1 bedroom, 1.5 bathroom condo features great natural light and a desirable north/east exposure, ideal for enjoying rocket launches. The spacious living/dining combo offers a comfortable layout, complemented by neutral ceramic tile flooring throughout for easy maintenance.The open kitchen provides good flow, while the screened-in porch is perfect for relaxing with a side view of the Indian River. Additional features include a stackable washer and dryer in the unit and ample closet space and storage.The community offers lush green space, picnic areas, and a large pool with clubhouse. One assigned parking space plus plenty of guest parking. Conveniently located near shopping, dining, and with easy access to all major roadways.


Broker Reciprocity Logo

This listing is courtesy of Keller Williams Space Coast. Property Listing Data contained within this site is the property of Brevard MLS and is provided for consumers looking to purchase real estate. Any other use is prohibited. We are not responsible for errors and omissions on this web site. All information contained herein should be deemed reliable but not guaranteed, all representations are approximate, and individual verification is recommended.

  • Acreage0.05
  • Area322 - NE Melbourne/Palm Shores
  • Assoc/HOA ContactShady Dell Riverview South
  • Association Fee IncludedCable TV, Insurance, Internet, Maintenance Grounds, Pest Control, Sewer, Trash and Water
  • Baths - Full1
  • Baths - Half1
  • Baths - Total2
  • Bedrooms1
  • CityMelbourne
  • Community FeesNo
  • ConstructionConcrete and Stucco
  • CoolingCentral Air
  • CountyBrevard
  • DirectionsFrom Pineda Causeway head south on US 1. Turn right onto Parkway and then right into the complex. It's the second building. Follow the walkway around the back to the elevator and then up to the third floor.
  • Equipment/AppliancesElectric Range, Microwave, Refrigerator and Washer/Dryer Stacked
  • Exterior FeaturesBalcony and Storm Shutters
  • FloorTile
  • FurnishedUnfurnished
  • General County LocationSouth
  • HeatCentral
  • Interior FeaturesCeiling Fan(s), Pantry and Primary Bathroom - Tub with Shower
  • List Price/SqFt$150.85 / sqft
  • Listing ID1067269
  • Listing StatusActive
  • Lot DescriptionOther
  • Lot SqFt2,178 sqft
  • ParkingAdditional Parking, Assigned and Parking Lot
  • Pet RestrictionsCats OK
  • PetsCats OK
  • PoolNo
  • PossessionClose Of Escrow
  • Private PoolNo
  • Property TypeResidential
  • Residential Sub-TypeCondo
  • ShowingLockbox,Showing Service
  • Sold Terms CodeCash,Conventional
  • SqFt - Living828 sqft
  • State/ProvinceFL
  • StatusActive
  • Status Change DateThursday, January 22nd, 2026
  • Street DirectionN
  • Street NameHarbor City
  • Street Number3150
  • Street SuffixBoulevard
  • SubdivisionShady Dell Riverview S Condo No 1
  • Tax Year2024
  • Taxes$667.12
  • To Be ConstructedNo
  • Total Floors in Building3
  • Total Floors/Stories3
  • Unit Number328
  • UtilitiesCable Connected, Electricity Connected, Sewer Connected and Water Connected
  • WaterfrontNo
  • Year Built1980
  • Zip Code32935
  • ZoningResidential

Share

Subscribe