# # # # #     THIS IS A DEMONSTRATION WEBSITE     # # # # #

~

Our Customizable MLS RETS Website With Updated Daily Listings

Please test out this Demo Website and all of its abilities to get an idea of how your website will work.

~

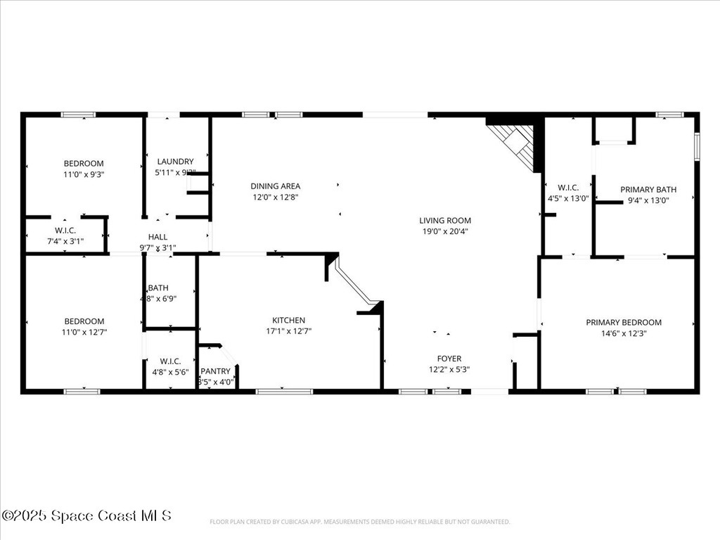
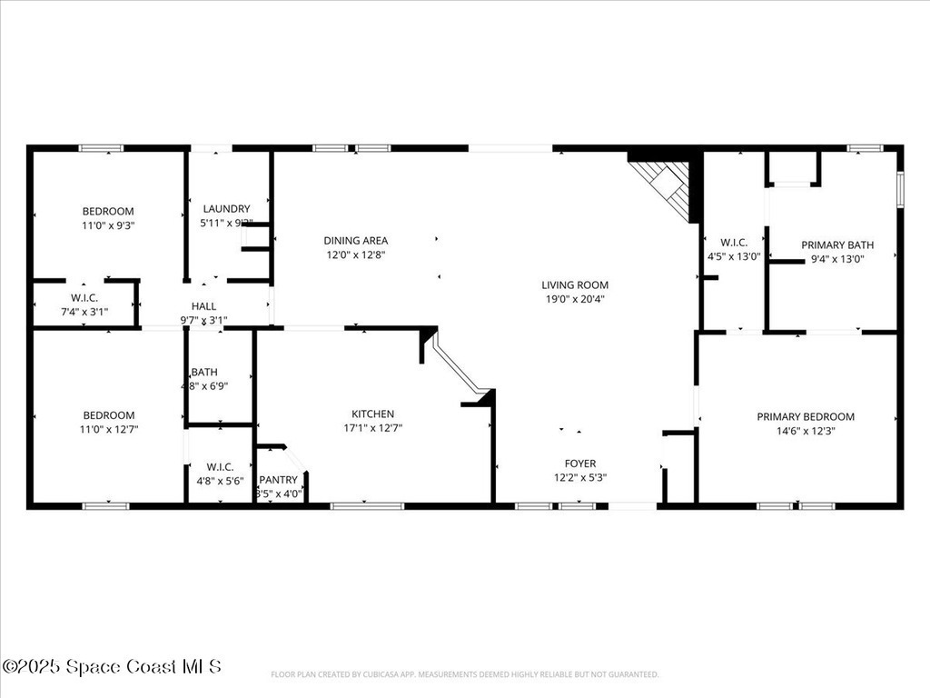
463 Brozman Lane, Cocoa, FL 32927

3

BEDROOMS

2

BATHROOMS

$254,900

PRICE

1,664

SQUARE FEET

Split Bedroom: N/A

Subdivision: Brozman Estates

MLS#: 1061598


Status: Active

For More Information Call:

321-255-4242

Property Details:

This fully updated property is ideally located and checks all the boxes. It features 3 bedrooms and 2 bathrooms on over a quarter-acre at the end of a peaceful cul-de-sac, offering ample lot space and no through traffic. The home boasts a new roof, modernized kitchen and bathrooms, fresh interior paint, and over 1,600 square feet of move-in-ready living space. The fully fenced backyard provides a quintessential Florida lifestyle with lush landscaping, a large covered deck, and a spacious storage shed. Brozman Lane is renowned for its privacy, spaciousness, and convenience--just minutes from US1, 528, Titusville, Canaveral Groves, and beaches. Affordable luxury in a prime location--this property won't stay available for long.


Broker Reciprocity Logo

This listing is courtesy of Lokation Real Estate. Property Listing Data contained within this site is the property of Brevard MLS and is provided for consumers looking to purchase real estate. Any other use is prohibited. We are not responsible for errors and omissions on this web site. All information contained herein should be deemed reliable but not guaranteed, all representations are approximate, and individual verification is recommended.

  • Acreage0.28
  • Area212 - Cocoa - West of US 1
  • Baths - Full2
  • Baths - Total2
  • Bedrooms3
  • CityCocoa
  • Community FeesNo
  • ConstructionVinyl Siding
  • CoolingCentral Air and Electric
  • CountyBrevard
  • DirectionsAbout 3 to 4 miles North of 528 on US1, turn left onto Canaveral Groves Blvd. Then, turn right onto Joy Rd and left onto Brozman Ln.
  • Dwelling ViewTrees/Woods
  • Equipment/AppliancesDishwasher, Electric Oven, Freezer, Ice Maker and Refrigerator
  • FireplaceWood Burning
  • FloorCarpet, Vinyl and Wood
  • FurnishedUnfurnished
  • General County LocationCentral
  • HeatCentral and Electric
  • Interior FeaturesBreakfast Bar, Ceiling Fan(s), Open Floorplan, Pantry, Primary Bathroom -Tub with Separate Shower, Split Bedrooms and Walk-In Closet(s)
  • List Price/SqFt$153.19 / sqft
  • Listing ID1061598
  • Listing StatusActive
  • Lot DescriptionCleared, Dead End Street and Few Trees
  • Lot SqFt12,197 sqft
  • ParkingAdditional Parking, Detached Carport and Off Street
  • Pet RestrictionsCats OK, Dogs OK and Yes
  • PetsCats OK, Dogs OK and Yes
  • PoolNo
  • PossessionClose Of Escrow
  • Private PoolNo
  • Property TypeResidential
  • Rental RestrictionsNo Minimum
  • Residential Sub-TypeMobile Home
  • Road SurfaceAsphalt,Concrete,Paved
  • RoofShingle
  • Security/SafetyClosed Circuit Camera(s) and Smoke Detector(s)
  • ShowingAppointment Only,Combination Lock Box,Showing Service
  • Sold Terms CodeCash,Conventional,FHA,VA Loan
  • SqFt - Living1,664 sqft
  • State/ProvinceFL
  • StatusActive
  • Status Change DateFriday, November 7th, 2025
  • Street NameBrozman
  • Street Number463
  • Street SuffixLane
  • StyleTraditional
  • SubdivisionBrozman Estates
  • Tax Year2025
  • To Be ConstructedNo
  • UtilitiesCable Available, Electricity Available, Electricity Connected, Water Available and Water Connected
  • WaterfrontNo
  • Year Built1994
  • Zip Code32927

Share

Subscribe